Adelboldstraat 52

  • € 550.000 k.k.
  • Utrecht
UT101979-32139-Adelboldstraat-52,-Utrecht-247801264

Description

Ben je op zoek naar een sfeervolle en ruime eengezinswoning in de gezellige en kindvriendelijke wijk Zuilen? Dan is deze charmante jaren ’30 woning boordevol karakter en met prachtige groene tuin, precies wat je zoekt!

De woning biedt een woon-/eetkamer met openslaande deuren naar de zonnige tuin op het zuidwesten, vier comfortabele slaapkamers én een moderne badkamer. In 2020 is de woning bovendien uitgebreid met een opbouw, waardoor er een volwaardige extra verdieping is ontstaan met een royale slaapkamer en een moderne badkamer.

Daarnaast is de woning in 2024 volledig geïsoleerd, voorzien van HR++ glas en maar liefst 6 zonnepanelen, wat resulteert in een gunstig energielabel A.

De woning is gelegen op een TOP locatie; op loopafstand vind je aan de ene kant rivier de Vecht waar je heerlijk langs het water in het groen kunt wandelen, terwijl je aan de andere kant het Julianapark én de creatieve broedplaats ‘Werkspoorkwartier’ met populaire horecagelegenheden hebt. Voor de dagelijkse boodschappen kan je terecht bij winkelcentrum Rokade, de Amsterdamsestraatweg of fiets in slechts 10 minuten naar het stadscentrum. Met ijssalon Roma, iets verderop in de straat, is het lekkerste ijsje altijd in de buurt en voor een kop koffie of lunch kan je terecht bij Lunchroom Parkzicht of The Colour Kitchen.

Voor natuurliefhebbers zijn de Maarsseveense Plassen, Natuurgebied Zuilen en het Gagelbos vlakbij gelegen. De uitvalswegen zijn goed bereikbaar en de verbinding met het openbaar vervoer is uitstekend: Station Zuilen, met een directe verbinding naar Amsterdam, ligt op slechts 5 minuten fietsen. Sportclubs en scholen zijn op korte afstand te bereiken. Bovendien kan parkeren direct voor de deur, thans gratis én zonder vergunning.

Kortom, deze geweldige woning mag je niet missen!

Indeling

Begane grond
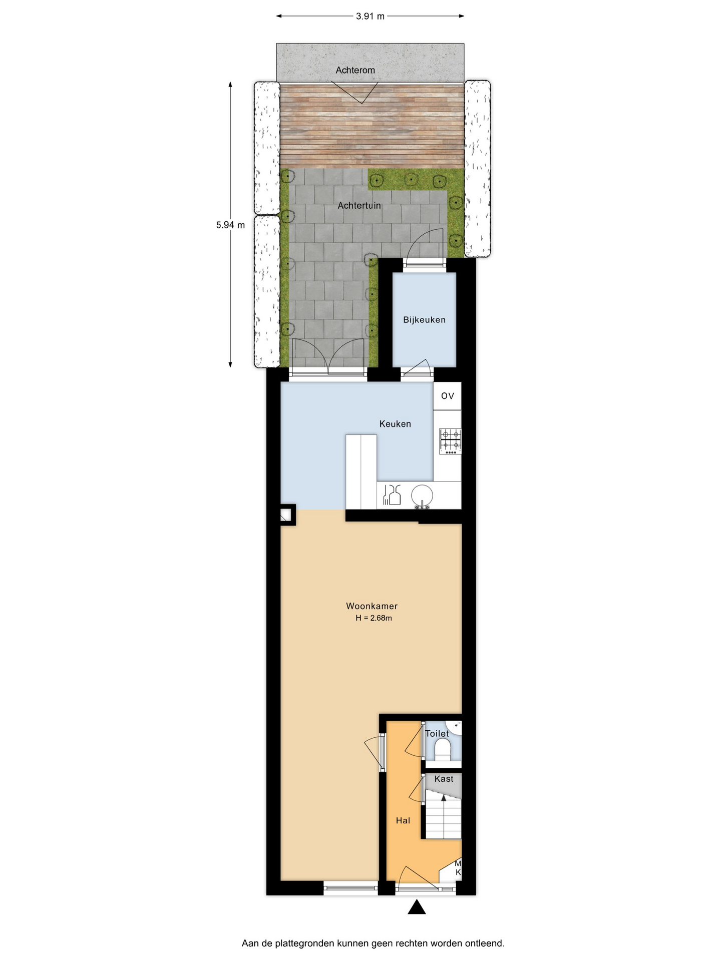
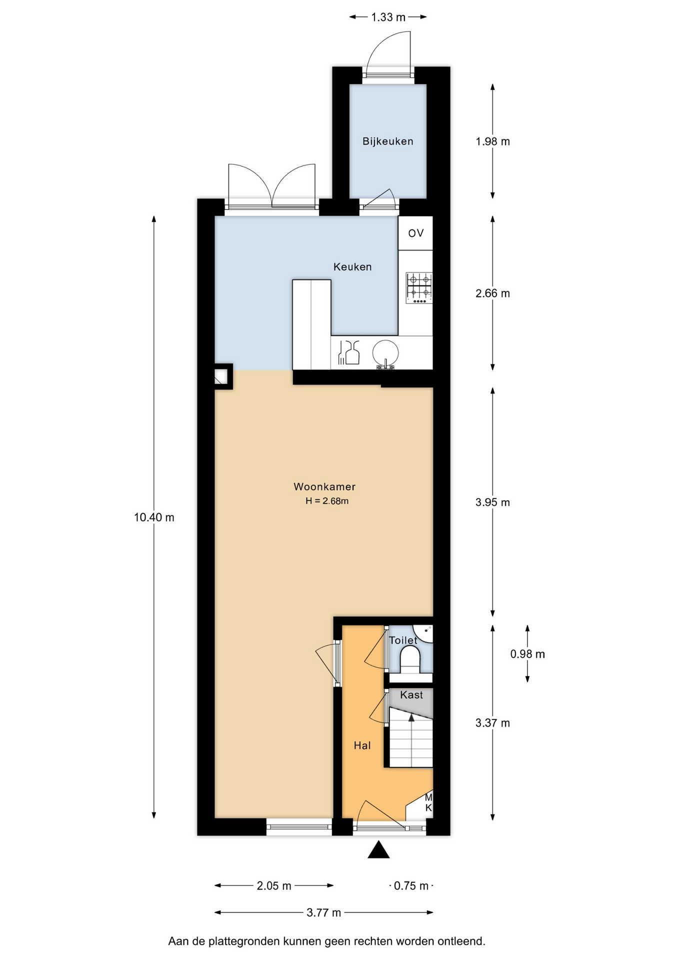
Je komt binnen in de hal met toilet, meterkast en trapopgang. Vanuit hier stap je de woonkamer binnen, waar aan de voorzijde plek is voor een eetgedeelte en het zitgedeelte centraal gelegen is. De open keuken ligt aan de achterzijde en grenst direct aan de tuin. Deze is praktisch ingedeeld en voorzien van een bar en diverse inbouwapparatuur, waaronder een nieuwe vaatwasser (2025), oven (2024), gaskookplaat, koelkast en combi-oven. Via de openslaande deuren loop je zo de tuin in. Daarnaast is er toegang tot de bijkeuken, ideaal voor extra voorraad of als praktische opbergruimte.

Eerste verdieping
De overloop geeft toegang tot drie lichte slaapkamers. De slaapkamer aan de voorzijde beschikt over een vaste kast en biedt een prettige doorkijk over het plein. Aan de achterzijde liggen nog twee slaapkamers, beide met een groot raam waardoor de kamers heerlijk licht zijn. Dankzij de veelzijdigheid kun je de ruimtes naar wens inrichten als slaap-, werk- of hobbykamer. Ook is er een handige trapkast aanwezig.

Tweede verdieping
Deze verdieping is in 2020 gerealiseerd. Op de tweede verdieping vind je de overloop met dakraam, de opstelplaats voor het witgoed en de cv-ketel. Aan de achterzijde ligt een ruime en lichte slaapkamer, die zich uitstekend leent als masterbedroom, logeerkamer, thuiskantoor of hobbyruimte. De badkamer is in 2020 volledig vernieuwd en uitgevoerd in een moderne stijl. Hier geniet je van een ligbad, inloopdouche, wastafelmeubel, toilet en een dakraam voor natuurlijk licht en ventilatie. Ook is er op de overloop extra opbergruimte beschikbaar achter het schot.

Tuin
De achtertuin is gelegen op het zonnige zuidwesten, waardoor je hier van ’s ochtends tot in de avond heerlijk van de zon kunt genieten. De tuin is aangelegd met groene heggen en beplanting en er is een terras waar volop ruimte is voor een gezellig zitje. Dankzij de praktische achterom is de tuin bovendien gemakkelijk bereikbaar.

Bijzonderheden
• Sfeervolle jaren ’30-woning
• Bouwjaar 1931, opbouw gerealiseerd in 2020
• Energielabel A
• Voorzien van 6 zonnepanelen
• Maar liefst vier slaapkamers
• Achtertuin op het zuidwesten
• CV-ketel huur- en onderhoudscontract (Feenstra) ca. €39,65
• Gunstige ligging ten opzichte van de binnenstad en voorzieningen;
• Gelegen in een kindvriendelijke wijk met scholen, speeltuinen en parken dichtbij
• Oplevering in overleg

Kom langs en ervaar zelf de charme van deze fijne plek in de geliefde wijk Zuilen!

Features

  • Status Onder bod
  • Price € 550.000 k.k.
  • Type of house Woonhuis
  • Livings space 96 m2
  • Total number of rooms 5
  • Number of bedrooms 4
  • Number of bathrooms 1
  • Bathroom facilities Ligbad, toilet, wastafelmeubel, inloopdouche
  • Volume 330 m3
  • Plot area 72 m2
  • Plot 3.268 m2
  • Construction type Bestaande bouw
  • Roof type Samengesteld dak
  • Floors 3
  • Property type Volle eigendom
  • Current destination Woonruimte
  • Current use Woonruimte
  • Construction year 1931
  • Energy label A
  • Situation Aan rustige weg, in woonwijk
  • Quality home Goed
  • Offered since 2025-10-24
  • Acceptance In overleg
  • Main garden location Zuidwest
  • Main garden area 23 m2
  • Main garden type Achtertuin
  • Garden type Achtertuin
  • Quality garden Normaal
  • Shed / storage type Aangebouwd steen
  • Insulation type Volledig geisoleerd
  • Central heating boiler Yes
  • Boiler construction year 2023
  • Boiler fuel type Gas
  • Boiler property Huur
  • Warm water type Cv ketel
  • Facilities Tv kabel, zonnepanelen, natuurlijke ventilatie
  • Garage type Geen garage
  • Parking facilities Openbaar parkeren
Show more Show less

The property in view

Plattegrond

Not found what you were looking for?

Let us help you and place a free, non-binding search order now.

image3

Deel deze pagina

Deel deze pagina